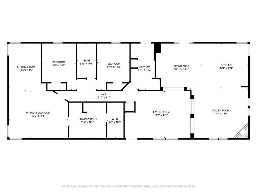
Description
Beautiful layout over 2300 sq. ft. Two living rooms , dining, fireplace, and kitchen at one end of home. Huge Master bedroom with master bath and sitting room/office at the other end. Two bedrooms and 2nd bath in between. Walls are textured drywall. Security doors front and back. Concrete sidewalks around home, covered patios for shade and comfort. Located about 700' from paved Chino Rd. 14' x 35' RV carport, 21' x 25' 2 car metal garage w/remote openers. Couple small sheds, another smaller carport for tools, 4 wheeler and such. Trees all around. Trees take years. Fenced and cross fenced, room for a horse? There is so much to be done to make a home "your own". There is so much already done here. Floor plan measurements are approximate.
-
3BEDS
-
1.25ACRES
-
2BATHS
-
01/2 BATHS
-
2,324SQFT
-
$127$/SQFT
School Ratings & Info
Description
Beautiful layout over 2300 sq. ft. Two living rooms , dining, fireplace, and kitchen at one end of home. Huge Master bedroom with master bath and sitting room/office at the other end. Two bedrooms and 2nd bath in between. Walls are textured drywall. Security doors front and back. Concrete sidewalks around home, covered patios for shade and comfort. Located about 700' from paved Chino Rd. 14' x 35' RV carport, 21' x 25' 2 car metal garage w/remote openers. Couple small sheds, another smaller carport for tools, 4 wheeler and such. Trees all around. Trees take years. Fenced and cross fenced, room for a horse? There is so much to be done to make a home "your own". There is so much already done here. Floor plan measurements are approximate.
